和泉市池田下町 中古一戸建て
中古戸建 |
![]() |
8298 |
クイック!ローンシュミレーション
物件画像
※各画像をクリックすると拡大して表示します
※各画像をクリックすると拡大して表示します
【担当者からのコメント】

和泉市池田下町の中古一戸建てのご紹介です。
閑静な住宅地の一角にある、土地面積約33.47坪の敷地に建つ、木造2階建て・広々5LDKのオール電化のお家になります。
【令和7年9月末リフォーム完成予定】
・IHコンロ交換 ・インターホン交換 ・ウォシュレット交換
・クロス張替 ・クッションフロア張替 ・畳表替 ・襖張替
・ハウスクリーニング他
すぐに480号線に出れますので、どちらの方面に行くにも便利な立地です。
周辺には銀行やコンビニエンスストアやスーパーなどがあり、とても生活しやすい環境ですよ。
学校区である「北池田小学校」、「北池田中学校」まで徒歩8分と、お子様の毎日の通学にも安心の距離ですね♪
現況空家につき、すぐにお引越ししていただけます(*^^)v
■車2台駐車可能(1台は車両制限あり)
■2年間の保証付きで安心♪
詳細はお気軽にお問い合わせください。 お待ちしております!!
周辺地図
Loading...
物件詳細情報
| 種別 | 中古戸建 | 価格 | 1688万円 | 間取り | 5LDK |
|---|---|---|---|---|---|
| 所在地 | 大阪府和泉市池田下町 | ||||
| 交通 | 南海泉北線和泉中央駅 徒歩19分 | ||||
| 築年月 | 2002/02 | 新築/中古 | 中古 |
|---|---|---|---|
| 建物面積 | 93.55m² | 計測方式 | |
| バルコニー | m² | 向き | |
| 建物階数 | 地上2階 | 部屋階数 | 階 |
| 建物構造 | 木造 | ||
| 敷地全体面積 | 110.66m² | 延べ床面積 | 93.55m² |
| 建築面積 | 49.81m² | ||
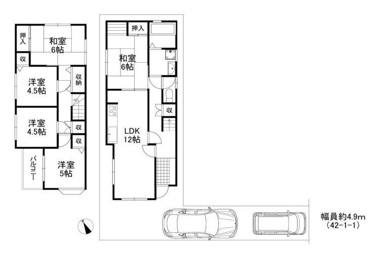
| 間取内容 | |
||
| 駐車場 | 2台(1台は車両制限あり) | ||
| 引渡/入居時期 | 即時 | 現況 | 空家 |
| 地目 | 宅地 | 用途地域 | 準工業 |
| 都市計画 | 市街化区域 | 地勢 | 平坦 |
| 区画面積 | 110.66m² | 土地面積計測方式 | 公簿 |
| 建ぺい率 | 60% | 容積率 | 200% |
| 土地権利 | 所有権 | 接道状況 | 一方 |
| 接道方向1 | 南東 | 接道間口1 | 約 2.5m |
| 接道種別1 | 公道 | 接道幅員1 | 約 4.9m |
| 国土法届出 | 不要 | ||
| 周辺環境 | 北池田小学校 北池田中学校 | 取引態様 | 仲介 |
| 物件番号 | 8298 | ||
|---|---|---|---|
| 自社物 | 先物 | 状態 | 売出中 |
| 設備・条件 | 保証付住宅 リノベーション IHコンロ 独立洗面台 温水洗浄便座 室内洗濯機置き場 TVドアホン 公営水道 排水下水 出窓 バルコニー オール電化 【設備その他】 |
||
和泉市池田下町 中古一戸建ての関連オススメ物件
※物件掲載内容と現況に相違がある場合は現況を優先と致します。
物件お問合せフォーム
この物件に関するお問合せは下記のフォームにご記入のうえ、「お問い合わせ内容を送信する」ボタンをクリックしてください。
1営業日以内に担当者より返信させていただきます。
お問合せ先
株式会社ライフワンホーム
私たちがお手伝いします。お気軽にご連絡ください。
| 住所 | 〒594-1106 和泉市はつが野3丁目1-9 |
|---|---|
| 電話番号 |
フリーダイヤル0120-05-8228 TEL:0725-58-8558 FAX:0725-58-8008 |
営業時間 | 9:00-20:00 |
| 定休日 | お盆・年末年始(水曜日も営業しております) |
| 代表者 | 松井 俊幸 |
| 免許番号 | 大阪府知事(2)第59606号 |
| 加盟団体 | (社)全国宅地建物取引業保証協会 (社)大阪府宅地建物取引業協会 |
0120-05-8228- 営業時間:9:00-20:00 定休日:お盆・年末年始(水曜日も営業)
- ★フォームからは24時間受付けております

0120-05-8228
中古戸建



























